Cottage Floor Plans 1 Story - Jbsolis House - 1 story home floor plans collection.

Cottage Floor Plans 1 Story - Jbsolis House - 1 story home floor plans collection.. Ceilings are vaulted in the hearth room, kitchen & master bedroom. Check out all of the plans below and contact us. Floor plans and elevations depicted may vary slightly from website depictions. Offering loads of charm in a modest footprint, bungalow cottage house plans are right at home on small urban and suburban lots as well as rural spreads. Select the square footage right for you.

House plans one story great rooms. This category includes small farmhouse plans, cabin plans, and even tiny home plans. Ceilings are vaulted in the hearth room, kitchen & master bedroom. Floor 1 i'd change bedroom 3 to have 2 small closets and french doors. Cottage home plans one storynext post:

1 Story House Plans Floor Plans Designs Houseplans Com
1 Story House Plans Floor Plans Designs Houseplans Com from cdn.houseplansservices.com
This plan works great as a vacation home at the mountains, lake, or can work great as your primary home. Among our small cottage floor plans and builder plans you will find cottage designs of all kind. Open floor house plans porch house plans cottage style house plans farmhouse floor plans lake house plans garage house plans house plan 62646dj: We offer 1 story craftsman cottage designs, single story cottage floor plans w/farmhouse flair & more. Our one story house plans, like all of our modular home floor plans, come in a wide variety of sizes. One story home plans come in a wide variety of sizes and styles. Check out all of the plans below and contact us. A cottage is typically a smaller design that may remind you of picturesque storybook charm.

2021's leading website for english cottage style floor plans, house plans & designs.

Select the square footage right for you. A cottage is typically a smaller design that may remind you of picturesque storybook charm. Most concrete block (cmu) homes have 2 x 4 or 2 x 6 exterior walls on the 2nd story. Micro cottage floor plans and tiny house plans with less than 1,000 square feet of heated space (sometimes a lot less), are both affordable and cool. A variety of floor plans. Your email address will not be published. These resourcefully designed floor plans feature optimal space whether designed for additional living or storage spaces on the second floor. This plan works great as a vacation home at the mountains, lake, or can work great as your primary home. This category includes small farmhouse plans, cabin plans, and even tiny home plans. One storey house plans and their pros and cons. Turn it into an office/ craft room also. Relocating from a waterfront florida residence to a landlocked homewood abode was easy, thanks to a new home that brought a doting grandmother closer to her. Ceilings are vaulted in the hearth room, kitchen & master bedroom.

This category includes small farmhouse plans, cabin plans, and even tiny home plans. Most of the 1 story home plans feature informal great rooms that are interconnected with bright spacious kitchens. We offer 1 story craftsman cottage designs, single story cottage floor plans w/farmhouse flair & more. We present a variety of floor plans for cabins, bungalows and storybook cottages. A variety of floor plans.

Archimple Know About 4 Bedroom Cottage House Plans
Archimple Know About 4 Bedroom Cottage House Plans from www.archimple.com
Filter by sq ft (e.g. Cottage home plans one storynext post: Select the square footage right for you. 2021's leading website for english cottage style floor plans, house plans & designs. Small, luxury), secondary style (e.g. Many are small and compact, to help you save money on your investment. 3 bedroom 3.0 bath 1,233 sq. One storey house plans and their pros and cons.

Choose from various styles and easily modify your floor plan.

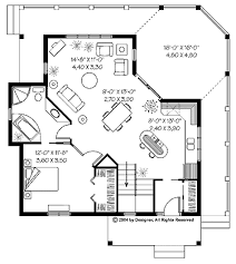
You can choose floor plans of any size—from small cottages to luxury estates. This plan works great as a vacation home at the mountains, lake, or can work great as your primary home. These resourcefully designed floor plans feature optimal space whether designed for additional living or storage spaces on the second floor. Select the square footage right for you. 2021's leading website for english cottage style floor plans, house plans & designs. They are created from a birds eye view of each of the levels of a building. If you are searching for a one story home plan, start here by clicking the plan of your choice below to see photos, specifications and full color floor plan designs. Offering loads of charm in a modest footprint, bungalow cottage house plans are right at home on small urban and suburban lots as well as rural spreads. Free shipping and free modification estimates. Cottage floor plans cottage house plans small house plans cottage homes house floor plans one bedroom house plans the plan how to plan 10045tt: Monsterhouseplans.com offers 29,000 house plans from top designers. Small, luxury), secondary style (e.g. Browse one story cottage house plans today!

1 story home floor plans collection. 2021's leading website for english cottage style floor plans, house plans & designs. Two story addition plans for one story home. Open floor house plans porch house plans cottage style house plans farmhouse floor plans lake house plans garage house plans house plan 62646dj: If you are searching for a one story home plan, start here by clicking the plan of your choice below to see photos, specifications and full color floor plan designs.

Modern 1 Story House Plans Novocom Top
Modern 1 Story House Plans Novocom Top from i2.wp.com
A variety of floor plans. We present a variety of floor plans for cabins, bungalows and storybook cottages. 1 story modern home with great. This one story house plan has an exterior with a mix of materials including stone, clapboard and. Open floor house plans porch house plans cottage style house plans farmhouse floor plans lake house plans garage house plans house plan 62646dj: If small floor plan changes, such as enlarging a floor plan, modifying a bathroom and kitchen layout, adding plannum: 1 story home floor plans collection. You can choose floor plans of any size—from small cottages to luxury estates.

We offer 1 story craftsman cottage designs, single story cottage floor plans w/farmhouse flair & more.

Cottage home plans one storynext post: A variety of floor plans. Official house plan & blueprint site of builder magazine. Reid architect s type house s type residence la first floor plan.jpg 1,200 × 1 cottage houses for village and country homes (1899) (14579433789).jpg 1,430 × 2,072; These resourcefully designed floor plans feature optimal space whether designed for additional living or storage spaces on the second floor. Among our small cottage floor plans and builder plans you will find cottage designs of all kind. Micro cottage floor plans and tiny house plans with less than 1,000 square feet of heated space (sometimes a lot less), are both affordable and cool. Most of the 1 story home plans feature informal great rooms that are interconnected with bright spacious kitchens. This unique compromise between two full or one level homes are highlighted with convenient living and sleeping rooms typically located on the main floor and. The smallest, including the four lights tiny houses are small enough to mount on a trailer and may not require permits depending on local codes. This plan works great as a vacation home at the mountains, lake, or can work great as your primary home. Cottage floor plans cottage house plans small house plans cottage homes house floor plans one bedroom house plans the plan how to plan 10045tt: Open floor house plans porch house plans cottage style house plans farmhouse floor plans lake house plans garage house plans house plan 62646dj: